



1015 CR, AMSTERDAM
UITERMATE KARAKTERVOL WONEN AAN DE KEIZERSGRACHT IN EEN RIJKSMONUMENT! DIT APPARTEMENT VAN CA. 101 M² MET LIFT IS GELEGEN OP EIGEN GROND EN BIEDT PRACHTIG UITZICHT OP DE GRACHT.
*** LIFT DIRECT IN APPARTEMENT | RIJKSMONUMENT | NIEUWE FUNDERING ***
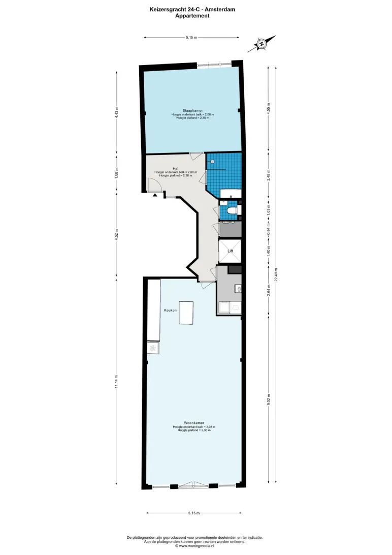
INDELING
ENTREE
Gemeenschappelijke entree waar het karakter van het grachtenpand direct voelbaar is. In de centrale hal is ruimte voor de gemeenschappelijke fietsenstalling. Vervolgens bereikt u via de lift of het trappenhuis de tweede verdieping.
WOONKAMER | OPEN KEUKEN
De ruime hal biedt een prettige binnenkomst en toegang tot alle vertrekken. Aan de grachtzijde bevindt zich de royale woonkamer met prachtig uitzicht op de Keizersgracht. Dankzij de openslaande deuren naar het Franse balkon geniet u hier optimaal van de ochtendzon.
OPEN KEUKEN
De nette open keuken is voorzien van diverse inbouwapparatuur, waaronder een vaatwasser en keramische kookplaat. Het eiland biedt veel opbergruimte en grenst aan een fijne plek voor een grote eettafel.
SLAAPKAMER
Aan de achterzijde ligt de zeer ruime slaapkamer met een praktische kastenwand waarin een verborgen werkplek is geïntegreerd.
BADKAMER | TOILET
Via de hal bereikt u de badkamer. Deze beschikt over een inloopdouche, wastafelmeubel en vloerverwarming. Daarnaast is er een separaat toilet met fonteintje.
LIFT
De lift komt direct uit in het appartement, een bijzonder en praktisch voordeel.
WASRUIMTE
Een aparte wasruimte biedt plaats aan wasmachine en droger en extra bergruimte. Hier bevinden zich ook de mechanische ventilatie en de cv-opstelling.
AFWERKING
De woning is keurig afgewerkt: wanden en plafonds zijn gestuukt, de vloer is voorzien van mooie houten vloerdelen. Verwarming en warm water worden verzorgd via een eigen cv-combiketel.
LOCATIE
Het appartement ligt aan het begin van de Keizersgracht, nabij de Brouwersgracht, op steenworp afstand van de levendige Herenstraat met tal van restaurants, lunchrooms en winkels. De Jordaan ligt om de hoek, met de historische Noordermarkt en de Noorderkerk. De locatie maakt deel uit van de beroemde grachtengordel, UNESCO Werelderfgoed. U woont hier omgeven door klassieke grachtenpanden, cultuur, galeries, antiekwinkels, design en een breed aanbod aan horeca, van bruine cafés tot gastronomische restaurants.
BIJZONDERHEDEN
• Lift met entree rechtstreeks in de woning
• Gelegen op eigen grond
• Nieuwe fundering begin jaren ’90
• Frans balkon
• Rijksmonument en onderdeel UNESCO Werelderfgoed
• VvE De Jonge Moor in eigen beheer
• Servicekosten: € 209,- per maand
• Bouwjaar: 17e eeuw, exact bouwjaar onbekend
Woonoppervlakte: circa 101 m² G.O. (meetrapportage beschikbaar)
Balkon: Frans balkon
Oplevering: in overleg/kan snel
Deze informatie is door ons met de nodige zorgvuldigheid samengesteld. Onzerzijds wordt echter geen enkele aansprakelijkheid aanvaard voor enige onvolledigheid, onjuistheid of anderszins, dan wel de gevolgen daarvan.
NEN 2580/NVM Meetinstructie:
De gebruikte meetinstructie is gebaseerd op de NEN2580. De Meetinstructie is bedoeld om een meer eenduidige manier van meten toe te passen voor het geven van een indicatie van de gebruiksoppervlakte. De Meetinstructie sluit verschillen in meetuitkomsten niet volledig uit, door bijvoorbeeld interpretatieverschillen, afrondingen of beperkingen bij het uitvoeren van de meting. Alle opgegeven maten en oppervlakten zijn indicatief.
Koper heeft zijn eigen onderzoeksplicht naar alle zaken die voor hem of haar van belang zijn. Wij adviseren u een deskundige (NVM)makelaar in te schakelen die u begeleidt bij het aankoopproces. Indien u zich niet laat vertegenwoordigen door een aankopende makelaar of kundig adviseur, acht u zich volgens de wet deskundig genoeg om alle van belang zijnde zaken te kunnen overzien. Van toepassing zijn de NVM voorwaarden.
=====
CHARACTERFUL LIVING ON THE KEIZERSGRACHT IN A NATIONAL MONUMENT! THIS APARTMENT OF APPROX. 101 M² WITH LIFT IS LOCATED ON FREEHOLD AND OFFERS STUNNING VIEWS OF THE CANAL.
*** LIFT DIRECTLY INTO APARTMENT | NATIONAL MONUMENT | NEW FOUNDATIONS ***
LAYOUT
ENTRANCE
Communal entrance where the character of the canal house is immediately felt. In the central hall there is space for communal bicycle storage. From here, you reach the second floor via either the lift or the staircase.
LIVING ROOM | OPEN KITCHEN
The spacious hallway offers a pleasant welcome and access to all rooms. At the front, facing the canal, you will find the generous living room with beautiful views over the Keizersgracht. Thanks to the double doors opening to the French balcony, you can fully enjoy the morning sun here.
OPEN KITCHEN
The well-maintained open kitchen is equipped with various built-in appliances, including a dishwasher and ceramic hob. The island provides ample storage space and connects to a comfortable area for a large dining table.
BEDROOM
At the rear lies the very spacious bedroom with a practical wall of closets, incorporating a hidden workspace.
BATHROOM | TOILET
The bathroom is accessed from the hall and features a walk-in shower, washbasin unit, and underfloor heating. In addition, there is a separate toilet with a small washbasin.
LIFT
The lift opens directly into the apartment, a unique and highly practical feature.
UTILITY ROOM
A separate utility room provides space for a washing machine, dryer, and additional storage. The mechanical ventilation system and central heating boiler are also located here.
FINISHING
The apartment is neatly finished: walls and ceilings are plastered, and the floor is fitted with beautiful wooden floorboards. Heating and hot water are supplied via a private central heating combi-boiler.
LOCATION
The apartment is located at the beginning of the Keizersgracht, near the Brouwersgracht, just steps away from the lively Herenstraat with numerous restaurants, lunchrooms, and shops. The Jordaan is right around the corner, with the historic Noordermarkt and Noorderkerk. This location is part of the famous canal belt, a UNESCO World Heritage site. Here, you live surrounded by classic canal houses, culture, galleries, antique shops, design boutiques, and a wide range of hospitality options, from traditional Dutch cafés to fine dining restaurants.
SPECIAL FEATURES
• Lift with direct entrance into the apartment
• Freehold property
• New foundations in the early 1990s
• French balcony
• National monument, part of UNESCO World Heritage
• VvE “De Jonge Moor” self-managed
• Service charges: € 209 per month
• Construction: 17th century, exact year unknown
Living area: approx. 101 m² G.O. (measurement report available)
Balcony: French balcony
Delivery: in consultation / quick completion possible
This information has been compiled by us with due care. However, we do not accept any liability for any incompleteness, inaccuracies, or otherwise, nor for the consequences thereof.
NEN 2580/NVM Measurement Instruction:
The measurement instruction used is based on the NEN2580 standard. It is intended to provide a more uniform method of measuring to give an indicative value of the usable floor area. The instruction does not eliminate differences in measurement results entirely, due to varying interpretations, rounding, or limitations during the measuring process. All stated dimensions and surfaces are indicative.
The buyer has their own duty to investigate all matters that are important to them. We strongly recommend engaging a qualified (NVM) real estate agent to assist you with the purchasing process. If you choose not to be represented by a purchasing agent or expert advisor, you are, under the law, deemed sufficiently knowledgeable to oversee all matters of importance yourself. The NVM terms and conditions apply.
Vondel Makelaars
Johannes Verhulststraat 14
1071NC, AMSTERDAM
Heb je al op deze woning gereageerd? Zorg dan dat jouw voorinschrijving voltooid is, zodat je kans maakt op een bezichtiging. Helaas kunnen we niet iedereen uitnodigen.
Maak een zoekprofiel aan!
Deze woning is erg populair. Voor deze woning zijn al voldoende contactaanvragen binnengekomen, je kunt daarom niet meer reageren op deze woning.
Maak een zoekprofiel aan!
)
Het kopen van een woning in Amsterdam doe je met een aankoopmakelaar.
Vind een aankoopmakelaar
)
Altijd als eerste op de hoogte van nieuw aanbod. Maak een zoekprofiel aan!
Maak een zoekprofiel aan
)
Waarom je je laat adviseren door experts bij de aankoop van jouw woning.
Over financiering