



1015 BH, AMSTERDAM
Geheel grachtenpand – Rijksmonument op EIGEN GROND.
Vraagprijs € 2.500.000,- k.k.
INDELING
Bruto woonoppervlakte 467 m2
Gebruiksoppervakte Wonen 224 m2
Overig Inpandige Ruimte 165 m2
GebouwGebonden Buitenruimte 12 m2
Totaal Bruto inhoud woning 1310 m3
LIGGING
Gelegen in het Centrum, Leliegrachtbuurt / Grachtengordel - West
PARKEREN
Betaald parkeren op de openbare weg en volgens het vergunningensysteem.
KERNGEGEVENS
Bestemming: wonen - werken
Bouwjaar 1645
Niet gesplitst
KADASTRALE GEGEVENS
Gemeente Amsterdam sectie M 5398, kadastrale grootte 98 m2
MEETBOUT
De meetbout op deze locatie is niet terug te vinden in DATA.AMSTERDAM.NL
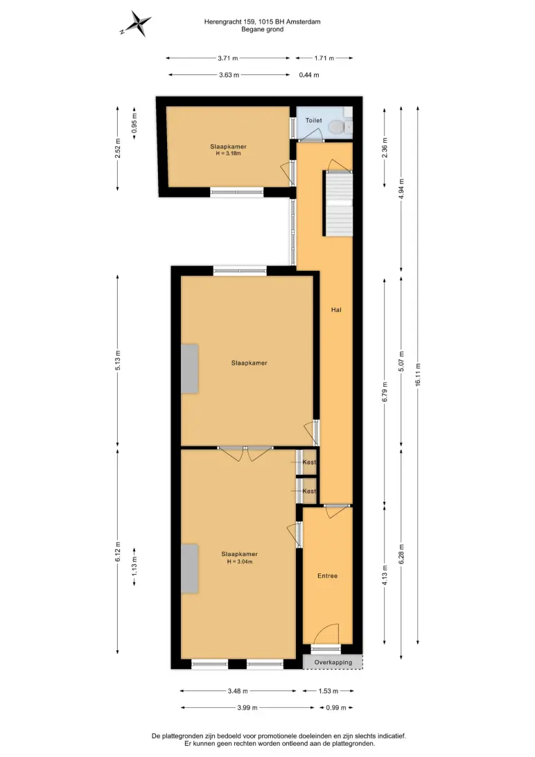
PLATTEGRONDEN
Er is een meetrapport volgend NEN 2580 aanwezig.
NOTARISKEUZE
De koop- en leveringsakte zal zo spoedig mogelijk na mondelinge overeenstemming worden opgemaakt volgens het model van de Koninklijke Notariële Beroepsorganisatie, Ring Amsterdam (via de boedelnotaris Heuvelrug notarissen in Driebergen) bij een Amsterdamse notaris.
Het pand wordt volgens het “As is, where is” principe verkocht.
De volgende clausules zullen worden opgenomen in de koopakte:
AS IS, WHERE IS
Verkoper en koper zijn overeengekomen dat in algemene zin het uitgangspunt ter zake de onderhavige koop en verkoop van het verkochte, een koop en verkoop op basis van het principe ‘as is, where is’ is, in verband waarmee de huidige bouwkundige, juridische, milieukundige, technische en feitelijke toestand van het verkochte in alle opzichten door koper wordt aanvaard en ter zake door verkoper geen garanties worden gegeven, behoudens dat aan koper de eigendom wordt geleverd, vrij van hypotheken en beslagen. In de koopakte gemelde verklaringen, voorwaarden, bedingen en de van toepassing verklaarde algemene bepalingen dienen in die context te worden gelezen, casu quo uitgelegd. Door het uitbrengen van een Bod aanvaardt Koper dat dergelijke eigenschappen en gebreken voor rekening en risico van de Koper zijn. Dit geldt eveneens voor het door Koper voorgenomen gebruik. Partijen wensen daarmee bewust af te wijken van het bepaalde in artikel 7:17 (conformiteitsvereiste) van het Burgerlijk Wetboek.
OUDERDOMSCLAUSULE
In de koopakte zal een zogenaamde ouderdomsclausule worden opgenomen waarin koper verklaart ermee bekend te zijn dat dit pand meer dan 40 jaar oud is, wat betekent dat de eisen die aan de bouwkwaliteit gesteld mogen worden aanzienlijk lager liggen dan bij nieuwe woningen. Tenzij de verkoper de kwaliteit ervan gegarandeerd heeft, staat hij niet in voor o.a. het dak, de gevels, de fundering, de vloeren, de wanden, de plafonds, de leidingen voor elektriciteit, water en gas, de riolering, rookkanalen, eventueel aanwezige CV-leidingen en de afwezigheid van ongedierte (zoals houtworm, boktor, zwam etc.) en de afwezigheid van doorslaand of optrekkend vocht etc.. Koper aanvaardt alle, in verband met vorenbedoelde lagere bouwkwaliteit, tekortkomingen van het verkochte, ook voor zover die een belemmering voor het normaal gebruik van het verkochte kunnen zijn.
ASBESTCLAUSULE
Partijen verklaren ermee bekend te zijn dat ten tijde van de bouw c.q. renovatie van het verkochte normale praktijk was asbest houdende materialen in de bouw te verwerken. Koper aanvaardt de eventuele aanwezigheid van asbest in het verkochte. Bij eventuele verwijdering van de asbesthoudende materialen dienen op grond van milieuwetgeving speciale maatregelen te worden getroffen. Koper verklaart hiermee bekend te zijn en vrijwaart verkoper van alle aansprakelijkheden die uit de aanwezigheid van enig asbesthoudende stof in de onroerende zaak kunnen voortvloeien. Verkoper heeft uitdrukkelijk vermeld dat door huurders diverse soorten vloerbedekkingen (waaronder al dan niet-asbesthoudend linoleum, vinyl enz.) gebruikt kunnen zijn, waarvan de soort of de samenstelling aan verkoper niet bekend is.
NIET-BEWONERSCLAUSULE
Verkoper heeft koper nadrukkelijk geattendeerd op het feit dat verkoper het onroerend goed nimmer zelf heeft gebruikt. En dat hij derhalve koper niet heeft kunnen informeren over eigenschappen van casu quo gebreken aan het verkochte waarvan hij op de hoogte zou zijn geweest als hij het verkochte zelf feitelijk zou hebben gebruikt. In dit kader zijn partijen uitdrukkelijk overeengekomen dat dergelijke eigenschappen casu quo gebreken voor rekening en risico van koper komen. Bij het tot stand komen van de koopsom is hier rekening mee gehouden. In het kader van de verkoop ‘as is, where is’ en het hiervoor vermelde kan verkoper Artikel 2.g. van de koopakte van het model van de KNB ring Amsterdam (‘De zich in de Gebruiks-eenheid en/of de Gemeenschappelijke gedeelten bevindende technische installaties en aan- en afvoerleidingen en bedradingen functioneren heden naar behoren en het gebruik daarvan is door de daartoe bevoegde instanties niet op enigerlei wijze beperkt’) niet garanderen.
VOORWAARDEN
OVERDRACHT
Uiterlijk zes weken na gunning (of zoveel eerder of later als partijen nader overeenkomen).
BETALING
De koopsom dient bij de levering te worden voldaan. Uiterlijk 2 weken na ondertekening van de koopovereenkomst dient koper een waarborgsom van 10% van de koopprijs bij de notaris te storten dan wel een bankgarantie tot zodanig bedrag gesteld te laten hebben.
GUNNING
De verkoper behoudt zich het recht voor om zonder opgaaf van redenen niet te gunnen of aan een ander dan de hoogste inschrijver dan wel de inschrijving steeds en zonder opgaaf van redenen af te gelasten, dit alles uitsluitend ter beoordeling van verkoper. De verkoper houdt zich te dien aanzien het recht van beraad voor. Indien niet wordt gegund of de inschrijving om welke reden dan ook wordt afgelast, staat het verkoper vrij om met wie dan ook in onderhandeling te treden over een mogelijke verkoop; verkoper is daarbij niet gehouden om (een) bieder(s) in onderhandelingen te betrekken en bieders komen mitsdien te dier zake geen rechten toe.
BOD
Elk bod dient onvoorwaardelijk, onherroepelijk en zonder enig voorbehoud te zijn en moet worden uitgedrukt in één bedrag in euro’s. Een bod dat is uitgedrukt in relatie tot een ander bod zodanig dat het bod gelijk is aan het andere bod vermeerderd met een bedrag is ongeldig.
Elke bieder blijft aan zijn bod, ook is dat niet het hoogste, gebonden totdat de verkoper gunt aan een ander, of vaststaat dat niet wordt gegund of de termijn waarbinnen de verkoper tot gunning kan overgaan is verstreken zonder dat is gegund.
De koop zal worden aangegaan onder de bepalingen en condities als opgenomen in het model koopcontract van de Koninklijke Notariële Beroepsorganisatie Ring Amsterdam.
Indien meer personen tezamen een bod uitbrengen, zijn zij hoofdelijk aansprakelijk voor hun verplichtingen jegens de verkoper.
VOORBEHOUD GUNNING
Verkoper behoudt zich het recht voor zonder opgaaf van redenen biedingen niet in behandeling te nemen.
DISCLAIMER
Deze informatie is door mij met de nodige zorgvuldigheid samengesteld. Mijnerzijds wordt echter geen enkele aansprakelijkheid aanvaard voor enige onvolledigheid, onjuistheid of anderszins, dan wel de gevolgen daarvan. Alle opgegeven maten en oppervlakten zijn indicatief. Er kunnen geen rechten aan ontleend worden aan door derden opgegeven informatie en weergegeven in deze brochure.
Koper heeft zijn eigen onderzoekplicht naar alle zaken, die voor hem van belang zijn. Wij adviseren u een NVM/MVA makelaar in te schakelen, die u met zijn deskundigheid zal bijstaan in het aankoopproces. Indien u geen professionele begeleiding wenst in te schakelen, acht u zich volgens de wet deskundig genoeg om alle zaken, die van belang zijn, te kunnen overzien. Van toepassing zijn de Algemene Consumentenvoorwaarden 2018 van de NVM.
Martin van Gelder Makelaar OG
Albrecht D�rerstraat 31 I
1077LV, AMSTERDAM
)
Het kopen van een woning in Amsterdam doe je met een aankoopmakelaar.
Vind een aankoopmakelaar
)
Altijd als eerste op de hoogte van nieuw aanbod. Maak een zoekprofiel aan!
Maak een zoekprofiel aan
)
Waarom je je laat adviseren door experts bij de aankoop van jouw woning.
Over financiering