



1019 PG, AMSTERDAM
Op een van de mooiste plekjes van het Oostelijk Havengebied gelegen vier kamer Penthouse met een zeer riant dakterras van maar liefst 49m2 en een parkeerplaats in de parkeerkelder. Door de ligging op de bovenste etage en een gevel grotendeels uitgevoerd in glas heeft u aan drie zijden een werkelijk prachtig uitzicht en lichtinval.
Het appartement maakt deel uit van het complex genaamd Parkblok, ontworpen door Herman Zeinstra van Zeinstra Van der Pol architecten en is gebouwd in 2000/2001.
Het gebouw met 46 appartementen in rood-bruine baksteen met grachtengordel groene kozijnen ligt aan de IJ-haven, de Seranggracht en in het groen van de reusachtige, gemeenschappelijk te gebruiken “tuin”.
Indeling
De entree van het complex bevindt zich aan de Bogortuin op de hoek van de Javakade. Via de hoofdentree kunt u per lift of het trappenhuis naar de vijfde en bovenste verdieping en ook naar de parkeergarage.
Vijfde en bovenste verdieping
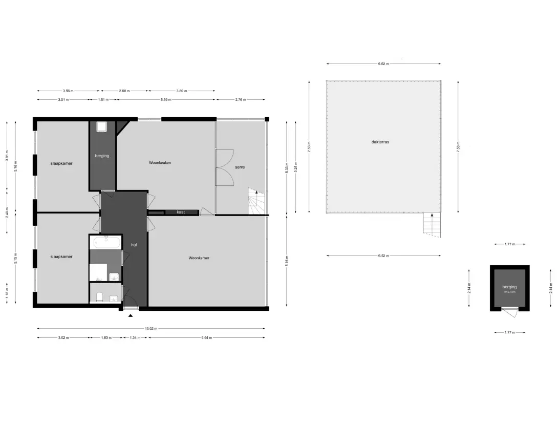
Entree woning, ruime hal met intercom, toiletruimte, naastgelegen badkamer voorzien van ligbad, douche en wastafel. Twee royale slaapkamers, een inpandige bergruimte met aansluiting voor de wasmachine en stadsverwarming.
De heerlijk lichte en ruime woonkamer met naastgelegen woonkeuken met serre zijn voorzien van veel glas en vrij uitzicht op de IJ-haven en de Bogortuin.
Dakterras
Via de vaste trap heeft u toegang tot het zeer riante dakterras van maar liefst 49m2. Het dakterras wordt heeft een elektrisch glazen luik, bediend met afstandsbediening.
Het terras is van hardhout met onderhoudsarm aluminium hekwerk en vanzelfsprekend zeer zonnig. Vanaf hier kunt u genieten van het fenomenale uitzicht over de stad, de vroege ochtend tot en met de avond zon. Een bewegend schilderij waar u naar kunt blijven kijken, het verveelt nooit!
Parkeren
De eigen parkeerplaats ligt in de onderliggende afgesloten parkeerkelder en is vanuit de hal van de woning per lift en trappenhuis bereikbaar. De parkeerplaats beschikt over een eigen laadpunt voor een elektrische auto aangesloten op de elektrische installatie van het appartement en is met toestemming aangelegd. De laadkosten kunnen desgewenst met een pasje in rekening worden gebracht bij derden, bijvoorbeeld wanneer de auto eigendom is van een leasemaatschappij. De vraagprijs is inclusief de parkeerplaats.
Omgeving
De woning is gelegen aan de Javakade en Bogortuin. Het Java-eiland is ontwikkeld als de grachtengordel van de toekomst, met gevarieerde woningbouw aan het water, onvervalste Amsterdamse dwarsgrachten en groene binnentuinen. Het heeft een ideale ligging aan de rand van de binnenstad. Heerlijk rustig maar overal dichtbij. De Jan Schaeferbrug en verbindingsdam geven een prima verbinding naar de uitvalswegen en met het centrum van Amsterdam. Scholen, verschillende kinderdagverblijven, cafés, restaurants en het winkelcentrum Brazilië bevinden zich op loopafstand. Voor de waterliefhebbers zijn er een buurthaventje, een jachthaven en een zeilschool. In het IJ is volop gelegenheid om te zwemmen en te suppen.
Bereikbaarheid
Met de fiets bent u in 10 minuten in het centrum en in 10 minuten op het CS. Goede OV-verbindingen brengen u in korte tijd naar het centrum, CS, station Amstel of Zuid. Met de auto bent u via de Piet Heintunnel in enkele minuten op de A10. Er zijn goede pontverbindingen met Noord en de Sluisbuurt.
SAIL Amsterdam 2030
Gegarandeerd een onvergetelijke ervaring, iedere 5 jaar Sail Amsterdam! Vanaf het dakterras hebben u, en uw gasten de ultieme plek om SAIL te beleven.
Geschiedenis Java-eiland
In 1997 tot 2000 is dit oude haveneiland onderdeel van het Oostelijk Havengebied omgetoverd tot een zeer gewilde woonwijk van de stad direct naast het Centrum. Het ontwerp is onder toeziend oog van de bekende architect van Sjoerd Soeters tot stand gekomen. Zijn visie is duidelijk zichtbaar. Het Java-eiland is een moderne interpretatie en voortzetting geworden van de grachtengordel. Er is veel variatie in architectuur waaraan toparchitecten invulling aan hebben gegeven. Het IJ en de IJ-haven is het belangrijkste water, maar daarnaast zijn er vier dwarsgrachten met allemaal grote en kleine grachtenpanden.
Net als in de 17e eeuwse grachtengordel zijn fraaie binnentuinen gerealiseerd door verschillende landschapsarchitecten. Het Java-eiland is een dermate groot succes dat het een blauwdruk is geworden voor nieuwbouwgebieden in binnen en buitenland en verzekerd lijkt van een toekomstige monumentenstatus. Het is slechts een "brug" verwijderd van hartje Amsterdam!
Meetrapport
De woning is ingemeten conform NEN 2580 en heeft een netto woonoppervlakte van 137,2 m2. Het meetrapport is uiteraard beschikbaar.
Servicekosten
De maandelijkse servicekosten bedragen € 335,08 per maand. Kleinschalig appartementencomplex (46 appartementen) met gezonde VVE onder professioneel beheer met meerjaren onderhoudsplanning.
Erfpacht
Het pand is gelegen op erfpachtgrond. De canon is afgekocht tot 30 april 2049, en reeds met de gunstige voorwaardes naar het nieuwe stelsel omgezet.
Energielabel
De woning heeft een Energielabel A.
Bijzonderheden
Gelijkvloers penthouse
Royale leefruimte met grote ramen en glazen serre
Plafond hoogte van 2.60m
Dakterras van 49 m2
Berging in de onderbouw
Garage in het appartementencomplex met eigen laadvoorziening voor elektrische auto’s
Kleinschalig appartementencomplex (46 appartementen) met gezonde VVE onder professioneel beheer met meerjaren onderhoudsplanning
----
Located in one of the most beautiful spots in the Eastern Docklands, this four-room penthouse has a very spacious roof terrace of no less than 49 m² and a parking space in the underground car park. Thanks to its location on the top floor and a façade largely made of glass, you have a truly beautiful view and plenty of light on three sides.
The flat is part of the Parkblok complex, designed by Herman Zeinstra of Zeinstra Van der Pol architects and built in 2000/2001.
The building, with 46 apartments in red-brown brick with canal belt green window frames, is located on the IJ harbour, the Seranggracht and in the greenery of the huge communal ‘garden’.
Layout
The entrance to the complex is located on Bogortuin on the corner of Javakade. Through the main entrance, you can take the lift or stairs to the fifth and top floor and also to the car park.
Fifth and top floor
Entrance to the property, spacious hall with intercom, toilet, adjacent bathroom with bath, shower and washbasin. Two spacious bedrooms, an indoor storage room with connection for the washing machine and district heating.
The wonderfully light and spacious living room with adjoining kitchen and conservatory have lots of glass and unobstructed views of the IJ harbour and the Bogortuin.
Roof terrace
A fixed staircase gives you access to the very spacious roof terrace of no less than 49m2. The roof terrace has an electric glass hatch, operated by remote control.
The terrace is made of hardwood with low-maintenance aluminium fencing and is, of course, very sunny. From here, you can enjoy the phenomenal view of the city, from the early morning to the evening sun. A moving painting that you can keep looking at, it never gets boring!
Parking
The private parking space is located in the enclosed underground car park and is accessible from the hall of the property by lift and staircase. The parking space has its own charging point for an electric car connected to the apartment's electrical installation and has been installed with permission. If desired, the charging costs can be charged to third parties with a card, for example, if the car is owned by a leasing company. The asking price includes the parking space.
Surroundings
The property is located on Javakade and Bogortuin. Java Island has been developed as the canal belt of the future, with varied housing on the waterfront, authentic Amsterdam cross canals and green inner gardens. It is ideally located on the edge of the city centre. Wonderfully quiet but close to everything. The Jan Schaeferbrug and connecting dam provide excellent connections to the arterial roads and the centre of Amsterdam. Schools, various nurseries, cafés, restaurants and the Brazilië shopping centre are within walking distance. For water lovers, there is a small neighbourhood harbour, a marina and a sailing school. The IJ offers plenty of opportunities for swimming and stand-up paddleboarding.
Accessibility
By bicycle, you can reach the city centre in 10 minutes and Central Station in 10 minutes. Good public transport connections take you to the city centre, Central Station, Amstel Station or Zuid in no time. By car, you can reach the A10 motorway in a few minutes via the Piet Hein Tunnel. There are good ferry connections to Noord and the Sluisbuurt neighbourhood.
SAIL Amsterdam 2030
Guaranteed to be an unforgettable experience, Sail Amsterdam takes place every 5 years! From the roof terrace, you and your guests have the ultimate place to experience SAIL.
History of Java Island
Between 1997 and 2000, this old harbour island, part of the Eastern Docklands, was transformed into a highly sought-after residential area of the city, right next to the city centre. The design was created under the watchful eye of renowned architect Sjoerd Soeters. His vision is clearly visible. Java Island has become a modern interpretation and continuation of the canal belt. There is a great deal of architectural variety, which has been realised by leading architects. The IJ and the IJ harbour are the most important waterways, but there are also four cross canals, all lined with large and small canal houses.
Just like in the 17th-century canal belt, beautiful inner gardens have been created by various landscape architects. Java Island has been such a great success that it has become a blueprint for new development areas at home and abroad and seems assured of future monument status. It is only a ‘bridge’ away from the heart of Amsterdam!
Measurement report
The property has been measured in accordance with NEN 2580 and has a net living area of 137.2 m2. The measurement report is of course available.
Service charges
The monthly service charges are €335.08 per month. Small-scale apartment complex (46 apartments) with a healthy owners' association under professional management with a long-term maintenance plan.
Leasehold
The property is located on leasehold land. The ground rent has been bought out until 30 April 2049 and has already been converted to the new system under favourable conditions.
Energy label
The property has an Energy Label A.
Special features
Ground floor penthouse
Spacious living area with large windows and glass conservatory
Ceiling height of 2.60 m
Roof terrace of 49 m²
Storage room in the basement
Garage in the apartment complex with private charging facility for electric cars
Small-scale apartment complex (46 apartments) with healthy owners' association under professional management with long-term maintenance planning
Kolt Makelaardij
Tindalstraat Baron G.A. 144-146
1019TX, AMSTERDAM
Heb je al op deze woning gereageerd? Zorg dan dat jouw voorinschrijving voltooid is, zodat je kans maakt op een bezichtiging. Helaas kunnen we niet iedereen uitnodigen.
Maak een zoekprofiel aan!
Deze woning is erg populair. Voor deze woning zijn al voldoende contactaanvragen binnengekomen, je kunt daarom niet meer reageren op deze woning.
Maak een zoekprofiel aan!
)
Het kopen van een woning in Amsterdam doe je met een aankoopmakelaar.
Vind een aankoopmakelaar
)
Altijd als eerste op de hoogte van nieuw aanbod. Maak een zoekprofiel aan!
Maak een zoekprofiel aan
)
Waarom je je laat adviseren door experts bij de aankoop van jouw woning.
Over financiering