



1058 SE, AMSTERDAM
PLEASE FIND ENGLISH TRANSLATION BELOW
***This Property is listed by a MVA Certified Expat Broker***
Licht, karakter en locatie – jouw ideale stadsappartement in de Hoofddorppleinbuurt!
Met fraai uitzicht over het groen vind je hier een sfeervol en goed onderhouden 3-kamer hoekappartement (ca. 66 m²) op de eerste verdieping, gelegen in de populaire en gezellige Hoofddorppleinbuurt.
Een woning met karakter, veel licht en moderne afwerking – de perfecte combinatie van oud-Amsterdamse charme en hedendaags comfort.
Wonen met karakter
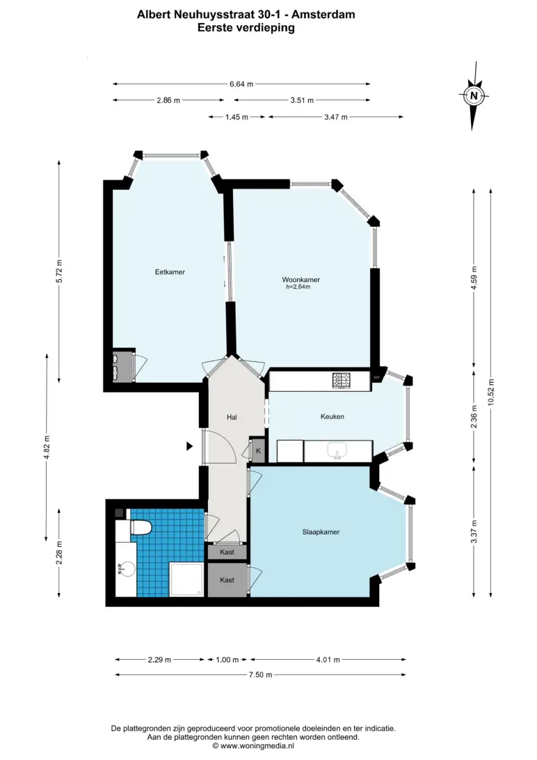
Via het verzorgde gemeenschappelijke trappenhuis bereik je de entree van de woning op de eerste verdieping. De hal maakt direct indruk door de lichte en open uitstraling en biedt toegang tot alle vertrekken.
Aan de voorzijde bevindt zich de royale woonkamer met grote raampartijen, een charmante erker en originele en suite-deuren. De eetkamer kan desgewenst ook als tweede slaapkamer of thuiswerkplek worden gebruikt.
De moderne keuken ligt centraal in de woning en is voorzien van diverse inbouwapparatuur.
Aan de achterzijde liggen de slaapkamer met handige berg- en kastruimte en de stijlvolle badkamer met inloopdouche, toilet en wastafelmeubel.
Authentieke glas-in-looddetails, drie erkers en de overvloed aan daglicht geven het appartement een unieke, warme sfeer. Instapklaar en met liefde onderhouden!
Omgeving en bereikbaarheid
De Albert Neuhuysstraat is een rustige, charmante straat vlak bij het Hoofddorpplein, het Vondelpark en de Overtoom. In de directe omgeving vind je volop winkels, speciaalzaken en gezellige horeca zoals Gent aan de Schinkel, Stadscafe Van Mechelen en Café Oslo. Binnen enkele minuten fiets je naar het Leidseplein of het centrum van Amsterdam.
De bereikbaarheid is uitstekend: diverse tram- en busverbindingen zijn om de hoek, en met de fiets ben je binnen 10 minuten op station Lelylaan of in hartje stad. Parkeren kan via het gemeentelijke vergunningsstelsel.
Goed om te weten
- Gelegen op eigen grond – geen erfpacht!
- Woonoppervlakte: ca. 66 m²
- Energielabel C
- Actieve en gezonde VvE (65 appartementsrechten), professioneel beheerd door Stedeplan
- Servicekosten: €165,- per maand
- Oplevering in overleg
Kortom: een licht, sfeervol en instapklaar appartement vol karakter – midden in een van de leukste buurten van Amsterdam. Kom kijken en ervaar zelf de charme van dit heerlijke thuis!
NOTARIS EN OPLEVERING:
Het opstellen van de koopakte dient plaats te vinden bij een notariskantoor binnen de Notariële Ring Amsterdam/Amstelveen binnen 5 werkdagen na mondelinge overeenstemming.
Aanvaarding in huidige staat, niet bezwaard, leeg en ontruimd, vrij van huur en gebruik. De oplevering zal in nader overleg plaatsvinden.
Toelichtingsclausule NEN2580
De Meetinstructie is gebaseerd op de NEN2580. De Meetinstructie is bedoeld om een meer eenduidige manier van meten toe te passen voor het geven van een indicatie van de gebruiksoppervlakte. De Meetinstructie sluit verschillen in meetuitkomsten niet volledig uit, door bijvoorbeeld interpretatieverschillen, afrondingen of beperkingen bij het uitvoeren van de meting.
English version:
***This Property is listed by a MVA Certified Expat Broker***
Light, Character & Location – Your Dream Apartment in Hoofddorppleinbuurt!
With a beautiful green view, this charming and well-maintained corner apartment (approx. 66 m²) on the first floor is located in one of Amsterdam’s most beloved neighborhoods: Hoofddorppleinbuurt.
A perfect blend of authentic charm and modern comfort – the ideal home for anyone who loves city life with a relaxed touch.
Stylish Living with Character
The apartment is accessed via a neat communal staircase. The bright hallway connects all rooms and immediately gives a spacious feel.
At the front, the large living room features big windows and a lovely bay window, creating an abundance of natural light. The original ensuite doors separate the living and dining areas, maintaining the authentic layout and cozy atmosphere.
The dining room can easily serve as a second bedroom or home office.
The modern kitchen is centrally located and fully equipped with built-in appliances.
At the rear, you’ll find the quiet bedroom with built-in storage and the sleek bathroom with walk-in shower, toilet, and vanity.
Beautiful stained-glass details, three bay windows, and a bright ambiance throughout make this home truly special. Move right in and enjoy!
The Neighborhood
The Albert Neuhuysstraat is a peaceful and charming street near Hoofddorpplein, just a short walk from the Vondelpark and Overtoom.
In the immediate area you’ll find a great selection of shops, specialty stores, and trendy cafés like Gent aan de Schinkel, Stadscafe Van Mechelen and Café Oslo.The Leidseplein and the city center are only a few minutes away by bike.
Excellent accessibility: several tram and bus lines are within walking distance, and both Station Lelylaan and the city center can be reached in about 10 minutes by bike. Parking is available through Amsterdam’s permit system.
Good to Know
- Located on freehold land – no ground lease!
- Living area: approx. 66 m²
- Energy label C
- Active and financially healthy HOA (65 units), professionally managed by Stedeplan
- Service costs: €165 per month
- Transfer date: in consultation.
In short: a stylish, bright, and move-in-ready apartment full of character – in one of Amsterdam’s most vibrant and green neighborhoods. Come and see it for yourself – you’ll feel right at home!
NOTARY AND DELIVERY:
The deed of sale must be drawn up at a notary's office within the Amsterdam/Amstelveen Notarial Ring within 5 business days of verbal agreement. Acceptance in its current condition, unencumbered, vacant and vacated, free of rent and use. The delivery will be made upon consultation. take place.
Explanatory clause NEN2580
The Measurement Instructions are based on NEN2580. The Measurement Instructions are intended to provide a more consistent measurement method for providing an indication of usable surface area. The Measurement Instructions do not completely eliminate differences in measurement results, for example, due to differences in interpretation, rounding, or limitations in performing the measurement.
Tel Krop Makelaars BV
Buitenveldertselaan 101
1082 VB, AMSTERDAM
)
Het kopen van een woning in Amsterdam doe je met een aankoopmakelaar.
Vind een aankoopmakelaar
)
Altijd als eerste op de hoogte van nieuw aanbod. Maak een zoekprofiel aan!
Maak een zoekprofiel aan
)
Waarom je je laat adviseren door experts bij de aankoop van jouw woning.
Over financiering