



1081 LA, AMSTERDAM
Elke vrijdag tussen 12.00 en 13.30 uur openen wij onze deuren in The Pulse (Jaddanbaikade 177). Loop binnen en ontdek het nieuwe woonproject Ceci. Tijdens de lunch break kun je de maquette, materialen en woningtypen bekijken en al je vragen stellen.
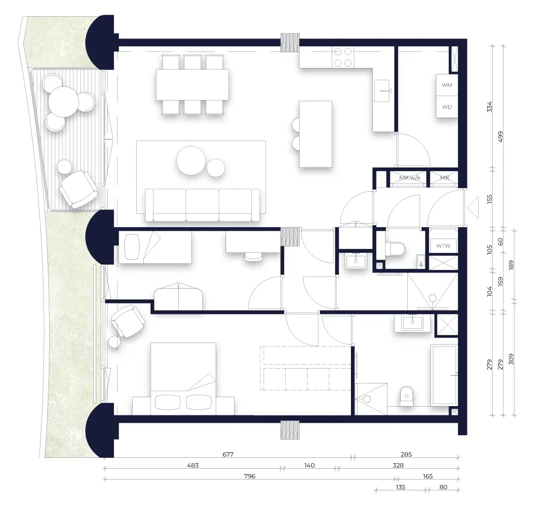
Type C 1 | Bouwnummer 5
Dit appartement op de 1e etage is georiënteerd op het westen en kijkt uit richting de toekomstige gracht langs de Jaddanbaikade. Studio Modijefsky ontwierp een gebalanceerde plattegrond met twee slaapkamers en twee badkamers. De living heeft een efficiënte breedte van bijna 5 meter en sluit aan op het balkon met westligging. Er is alle ruimte voor een kookeiland en een storageroom grenzend aan de keuken. De beide slaapkamers grenzen aan de groene zone naast het balkon. De grootste slaapkamer geeft het gevoel van een hotelsuite met aangrenzend een badkamer en ruimte voor kasten. De tweede slaapkamer beschikt over een eigen badkamer.
Ceci – boutique wonen op de Zuidas
Met 24 zorgvuldig ontworpen appartementen vanaf circa 72 tot 213 m² introduceert Ceci boutique living op de Zuidas, op de hoek van de Gustav Mahlerlaan, de Jaddanbaikade en het groene Florence Pricehof. Alles wat het dagelijks levenop de Zuidas zo comfortabel maakt, is dichtbij. Ceci oogt vriendelijk en ingetogen, maar is allesbehalve alledaags. Het golvende silhouet, de zachte rondingen en de terugliggende balkons met groene beplanting geven het gebouw een eigen identiteit. Binnen ervaar je ruimte, met een plafondhoogte van zo’n 2.80 meter, en licht, dankzij de grote raampartijen.
Comfortabel en toekomstgericht
Ceci is ontwikkeld met een hoge duurzaamheidsambitie. Dankzij hoge isolatiewaarden, triple glas, geïntegreerde zonnepanelen en een innovatieve bouwmethode met hout en gerecycled beton wordt het energieverbruik geminimaliseerd en het wooncomfort gemaximaliseerd. Het resultaat is een A+++label. Vloerverwarming en vloerkoeling zorgen het hele jaar door voor een aangenaam en stabiel binnenklimaat. Het triple glas biedt niet alleen uitstekende isolatie, maar ook effectieve geluidsdemping.
Interieur op maat
De interieurarchitecten van Studio Modijefski ontwierpen de plattegronden van de woningen en maakten een selectie van materialen voor de afwerking van de badkamer. Wie verder wil personaliseren, kan gebruikmaken van aanvullende interieurservices van Studio Modijefsky. Van verfijnde afwerkingen tot een volledig maatwerk interieur, passend bij het karakter van Ceci.
Parkeren
Ceci beschikt niet over een eigen parkeergarage. Voor bewoners is er een passend abonnement in de nabijgelegen Q-Park garage. In de kelder bevindt zich een afgesloten fietsenstalling met oplaadpunten voor e-bikes en ruimte voor bakfietsen.
Erfpacht
Net zoals bij de meeste woningen in Amsterdam, is sprake van erfpacht. De koopsom is exclusief jaarlijkse erfpachtcanon van € 8.901,-. De jaarlijkse canon is in principe fiscaal aftrekbaar.
____________________________________________________________________________
Every Friday between 12:00 and 13:30, we open our doors at The Pulse (Jaddanbaikade 177). Drop in and discover the new residential project Ceci. During your lunch break, you can explore the scale model, materials, and different apartment types, and we’ll be happy to answer any questions you may have.
Type C 1 | Residence 5
Located on the 1st floor and oriented to the west, this apartment overlooks the future canal along the Jaddanbaikade. Studio Modijefski designed a balanced layout with two bedrooms and two bathrooms. The living space has an efficient width of nearly 5 metres and connects to the west-facing balcony. There is ample room for a kitchen island and a storage room adjacent to the kitchen. Both bedrooms face the green zone beside the balcony. The main bedroom offers a hotel-suite feel with an en-suite bathroom and space for wardrobes. The second bedroom also has its own bathroom.
Ceci – Boutique living on the Zuidas
With 24 carefully designed apartments ranging from approximately 72 to 213 m², Ceci introduces boutique living to the Zuidas, located at the corner of Gustav Mahlerlaan, Jaddanbaikade and the green Florence Pricehof. Everything that makes daily life on the Zuidas comfortable is within easy reach. Ceci presents itself as friendly and understated, yet far from ordinary. Its flowing silhouette, soft curves and recessed balconies with lush planting give the building a distinctive identity. Inside, generous ceiling heights of approximately 2.80 metres and large windows create a sense of space and abundant daylight.
Comfortable and future-oriented
Ceci has been developed with ambitious sustainability goals. High insulation values, triple glazing, integrated solar panels and an innovative construction method using timber and recycled concrete minimise energy consumption while maximising living comfort. The result is an A+++ energy label. Underfloor heating and cooling provide a stable and comfortable indoor climate throughout the year. Triple glazing not only offers excellent insulation, but also effective sound reduction.
Tailored interiors
The interior architects of Studio Modijefski designed the apartment layouts and selected the materials for the bathroom finishes. Buyers wishing to further personalise their home can make use of additional interior services by Studio Modijefski, ranging from refined detailing to fully bespoke interiors in keeping with the character of Ceci.
Ground lease (Erfpacht)
As is common for most homes in Amsterdam, the apartments are offered on a ground lease basis. The purchase price excludes the annual ground rent of € 8.901,-. In principle, the annual ground rent is tax deductible.
Parking
Ceci does not have its own parking garage. Residents can make use of a suitable subscription in the nearby Q-Park garage. A secure bicycle storage area is located in the basement, equipped with charging points for e-bikes and space for cargo bikes.
Broersma Works and Living
Kings Avenue 14
1075AC, AMSTERDAM
)
Buying a home in Amsterdam is done with a buying agent.
Find a buying agent
)
Always the first to know about new offers. Create a search profile!
Create a search profile