



1541 CG, KOOG AAN DE ZAAN
Dit hoekappartement ligt op de derde etage en meet meer dan tachtig vierkante meter. Met twee slaapkamers biedt dit appartement, met balkons op zowel het prettige westen als met zicht op de Zaan, allerlei mogelijkheden voor herstarters, tweeverdieners en doorstromers. Eigenlijk voor iedereen die tekent voor het gemak van gelijkvloers wonen en daarbij hoge eisen stelt aan zowel in- als exterieur!
De keuken wordt bestemd in de woonkamer en wordt door de koper zelf naar eigen smaak en eis ingevuld. Zowel de woonkamer als één van de twee slaapkamers bieden toegang tot een buitenruimte. De gevelhoge raampartijen liggen diep in de bakstenen gevels. De elegante kozijnen zijn van duurzaam hardhout. Gecombineerd met het ontwerp geeft dit het gebouw een pakhuisstijl die zo goed past bij de geschiedenis, het heden en de toekomst aan de Zaan.
De sanitaire ruimtes, meervoud vanwege de separate plaatsing van het toilet, worden standaard met hoogwaardige materialen afgewerkt en ingericht. Kopers krijgen echter al voor de oplevering de ruimte hier een of meer stappen verder te gaan. De open keuken is casco en voorbereid op het nieuwe [elektrische] koken. De warmtepompen en gezamenlijke zonnepanelen vullen op een duurzame manier een belangrijk deel van de externe energiebehoefte in. Het warmte-terug-winsysteem en boiler dragen hier in belangrijke mate aan bij. De vloeren vormen de warmtebron voor het hele appartement. 's Zomers is het systeem in staat beperkt te koelen.
Dit royale appartement is ruim, comfortabel, duurzaam, toekomstgericht en biedt leef- en buitenruimte met zonlicht en Zaanzicht!
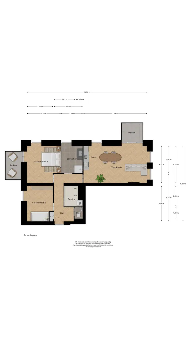
Indeling:
Hoofdentree. Bellentableau met video-intercom en brievenbussen. Centrale hal met externe meterkast en binnendoor naar gezamenlijke fietsenstalling met eveneens aparte ingang. Trappenhuis en liftinstallatie.
3e Etage: gezamenlijke hal. Entree appartement. Hal met meterkast. Geheel betegelde toiletruimte met wandcloset en fontein. Berging met mechanische ventilatie en boiler, aansluitingen wasmachine en -droger. Slaapkamer (ruim 11 m2) met gevelhoge raampartij waarin kiep-/ draaimogelijkheid. Tweede slaapkamer (bijna 15 m2) met aan twee kanten gevelhoge raampartijen en draaideur naar balkon op het westen. Geheel betegelde badkamer met inloopdouche en wastafel. Uitbreiding van het sanitairpakket is een kopersoptie.
Lichte woonkamer (± 30 m2) met casco open keuken en living met Zaanzicht. Gevelgrote raampartijen aan de Zaanzijde en dito met glazen draaideur naar balkon.
Het Zuideinde in Koog aan de Zaan ligt centraal tussen het stadse Zaandam en het historische erfgoed van oud-Koog en de Zaanse dorpen. Zowel supermarkten, verswinkels, als kinderopvang, scholen, sportcomplexen, NS-station en snelwegen bevinden zich in de onmiddellijke nabijheid. De rit naar het centrumring om Amsterdam kost hooguit een kwartier. Medische voorzieningen, para-medische praktijken en dagelijkse voorzieningen zijn zowel met de auto, openbaar vervoer als op de fiets of zelfs benenwagen uitstekend te bereiken. Horecaplein de Dam, maar ook de Zaanse Schans zijn dichtbij. Gezellig wat eten, misschien iets halen of laten bezorgen. Culinair, cultureel én natuurschoon zijn hier aan het Zuideinde allemaal onder handbereik.
Thijssen Nieuwbouw
Burgemeester Haspelslaan 49
1181 NB, AMSTELVEEN
)
Het kopen van een woning in Amsterdam doe je met een aankoopmakelaar.
Vind een aankoopmakelaar
)
Altijd als eerste op de hoogte van nieuw aanbod. Maak een zoekprofiel aan!
Maak een zoekprofiel aan
)
Waarom je je laat adviseren door experts bij de aankoop van jouw woning.
Over financiering