



1087 VR, AMSTERDAM
Creatief nieuwbouwappartement met privé entree vanaf straat én privé tuin/terras!
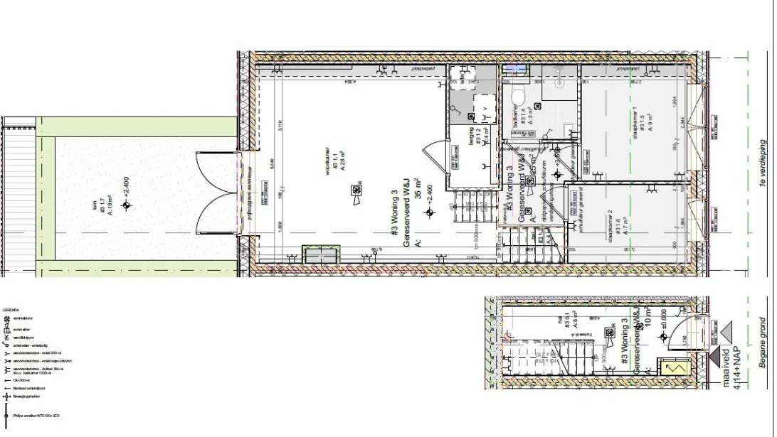
Een creatief nieuwbouwappartement van circa 70 m2, gelegen op de 1e etage van nieuwbouwproject Mooijburg Park op Centrumeiland IJburg. Op de begane grond heb je je eigen voordeur aan straat en bereik je met de trap de 1e etage. Daar ligt een een ruime woonkamer met plek voor de open keuken. Hier is ook de toegang naar de heerlijke eigen terrastuin op het NW. Verder - splitlevel - zijn er maar liefst twee slaapkamers, een badkamer en een technische ruimte. Dat is mooi wonen in Mooijburg Park!
De prijs is € 410.000 v.o.n. op basis van een jaarlijkse canonbetaling. De prijs is exclusief servicekosten en exclusief rente. De erfpacht is ingegaan en de bouw is gestart! Van belang is te vermelden dat aankoop alleen voor eigen bewoning mogelijk is (zelfbewoningsplicht voor 5 jaar). Het is niet mogelijk deze woning als beleggingsobject te kopen. Bij deze woning kan géén parkeerplaats worden gekocht en er wordt géén parkeervergunning op straat verstrekt.
Laatste kans!
----------------
Alle appartementen van Park zijn verkocht, met de groep kopers van dit mede-opdrachtgeverschapsproject (MO project) is het ontwikkeltraject doorlopen en de bouw is inmiddels gestart! Wil je ook graag mooi wonen op Centrumeiland, koop dit appartement. Interesse? Neem contact op met Hallie & Van Klooster Makelaardij (020 – 6816 716 of projecten@hallie-vanklooster.nl) en vraag meer informatie aan, zoals het ontwerp en plattegronden van dit mooie appartement.
Mooijburg Park, duurzaam wonen
----------------------------------------
Park, gelegen op kavel 7-06, maakt onderdeel uit van een nagenoeg vierkant nieuwbouwwoonblok, gelegen op de hoek van de toekomstige Tip Maruggstraat en de Woiskistraat. Het gaat om de zuid-zuidoosthoek van het woonblok, bestaat straks uit 5 verdiepingen en er worden 18 appartementen gerealiseerd. De ligging is ideaal, want de binnenzijde is geheel gericht op het westen en biedt uitzicht op de ruime binnentuin of – tuinen. Aan de voorzijde komt schuin aan de overkant een parkje.
Het gebouw wordt met name zeer duurzaam en met veel hout ontwikkeld. De kopers hebben in mede-opdrachtgeverschap samengewerkt met met de ontwikkelcombinatie Natrufied-DGV Group, een samenwerkingsverband van een duurzaam architect en duurzaam ontwikkelaar, die hun sporen qua duurzame woningbouw zowel in Nederland als ook daarbuiten verdiend hebben. Dit betekent dat het een energie leverend, rainproof, klimaat adaptief, natuur inclusief gebouw wordt met een EPC van -0,2, waarin een gezond binnenklimaat heel belangrijk is. Houd u er svp rekening mee dat een en ander, zoals de uitvoering en het exacte aantal m2 woonoppervlak nog aan wijzigingen onderhevig kan zijn gezien de aard van het project.
Locatie
---------
Centrumeiland is onderdeel van de eilandenarchipel IJburg Amsterdam. Op Centrumeiland komen ongeveer 1.300 woningen, met een duurzaam karakter. Ook komen er diverse voorzieningen als scholen en andere openbare voorzieningen. Centrumeiland is de schakel naar Strandeiland, het uiteindelijke ‘stadshart’ van IJburg, met winkelvoorzieningen en het grote stadsstrand, uitkijkend over het IJmeer. Centrumeiland krijgt een stedelijk woonmilieu met een intiem binnenmilieu. De bouwblokken verspringen ten opzichte van elkaar en variëren in grootte. Hierdoor ontstaan er pleinen, groene plekken en korte smalle straten.
Interesse?
-------------
Indien je concrete interesse hebt dan horen wij dat graag en nodigen wij je graag uit voor een informatie sessie of informatief gesprek. Wil iemand daadwerkelijk kopen, dan is de volgende stap om de intentieverklaring dat je aan het project wilt deelnemen te tekenen. Deze verklaring is niet vrijblijvend, je gaat hiermee een overeenkomst met het project aan. Je tekent daarmee ook voor de verplichting om €2.500 optiegeld te betalen. Tot aan het moment van koop-/aanneemovereenkomst zijn er geen verdere financiële verplichtingen. Het optiegeld is niet terugvorderbaar, maar wordt wel in mindering gebracht op de totale aankoopsom.
Graag tot ziens bij Mooijburg Park!
------------------------------------------
Neem contact op met Hallie & Van Klooster Makelaardij (020 – 6816 716 of projecten@hallie-vanklooster.nl) en vraag de uitgebreide informatie aan, zoals het concept ontwerp en plattegronden en de prijslijst.
Hallie & Van Klooster Makelaardij
Frederik Hendrikstraat 84
1052 HK, AMSTERDAM
Heb je al op deze woning gereageerd? Zorg dan dat jouw voorinschrijving voltooid is, zodat je kans maakt op een bezichtiging. Helaas kunnen we niet iedereen uitnodigen.
Maak een zoekprofiel aan!
Deze woning is erg populair. Voor deze woning zijn al voldoende contactaanvragen binnengekomen, je kunt daarom niet meer reageren op deze woning.
Maak een zoekprofiel aan!
)
Het kopen van een woning in Amsterdam doe je met een aankoopmakelaar.
Vind een aankoopmakelaar
)
Altijd als eerste op de hoogte van nieuw aanbod. Maak een zoekprofiel aan!
Maak een zoekprofiel aan
)
Waarom je je laat adviseren door experts bij de aankoop van jouw woning.
Over financiering