



1068 VM, AMSTERDAM
EXCLUSIEF VIJF-KAMER PENTHOUSE APPARTEMENT (145 M2 ) MET EEN ROYAAL (17 M2) TERRAS OP HET ZUIDEN MET VRIJ UITZICHT OP WATER EN GROEN, ENERGIELABEL A, TWEE BADKAMERS, TWEE EIGEN PARKEERPLAATSEN EN (FIETSEN) BERGING IN DE AFGESLOTEN PARKEERGARAGE IN EEN MODERN COMPLEX ''HET WATERFORT'' (2006) OP EEN HEERLIJKE PLEK AAN HET SLOTERPARK EN DE SLOTERPLAS!
Ruimte en comfort, met het bruisende centrum van Amsterdam altijd dichtbij. Het beste van twee werelden! Een werkelijk unieke combinatie die ontzettend gewild is! Word jij de gelukkige nieuwe bewoner van dit pareltje? Neem dan (heel) snel contact met op met URBAN MAKELAARS!
***(FOR ENGLISH PLEASE SCROLL DOWN)***
INDELING: Zie de plattegronden in de fotobijlage.
BEGANE GROND: Op de begane grond bevindt zich de afgesloten entree met een video intercomsysteem en de trap of de lift naar de 5e verdieping.
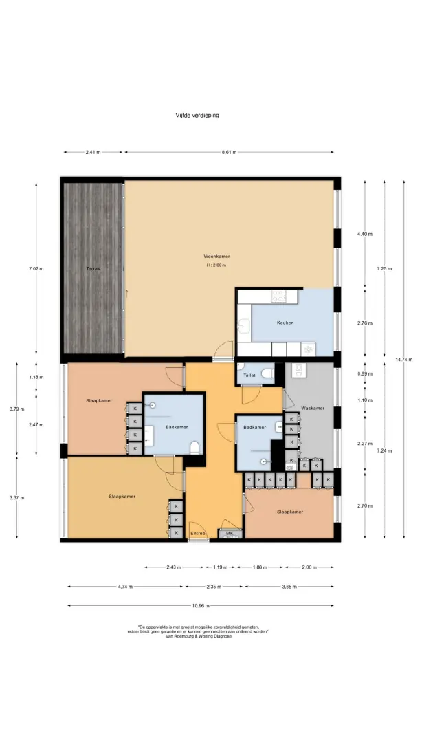
VIJFDE VERDIEPING: Door de goede indeling is het appartement voorzien van ruime kamers. Het appartement is ingedeeld met een grote hal waar ook het separate gastentoilet, de badkamer met douche en wastafel en een wasruimte met c.v. installatie, wasmachine en droger aansluiting op uitkomen. Hier zou nog een werkkamer van gemaakt kunnen worden. Grote living met dubbele schuifpui naar het terras van 7,25 x 2,40 m op het zuiden en zicht op de binnenplaats van het complex. Het terras is voorzien van zonwering en verwarming. Aan de voorzijde van het appartement ligt de riante halfopen keuken. De luxe keuken is uitgevoerd met zeer veel kastruimte, hoogglans kasten en composiet aanrechtblad voorzien van diverse Siemens apparatuur: een gaskookplaat met wok brander, afzuigkap, koel/vries combinatie, grote warmhoudlade, ingebouwd koffieapparaat, cooker, afwasmachine, combimagnetron en oven. Het appartement heeft in totaal 3 royale slaapkamers, waarvan een met eigen badkamer voorzien van een grote inloopdouche, toilet en wastafelmeubel met twee wastafels. De woning is geheel voorzien van een onlangs gerenoveerde eiken houten vloer.
PARKEREN EN BERGING: Voor de nieuwe bewoners is er verder de beschikking over een individuele berging en maar liefst TWEE eigen parkeerplaatsen in de ondergelegen afgesloten parkeergarage.
ERFPACHT: De erfpachtcanon is afgekocht tot en met 31-12-2054. De jaarlijkse canon vanaf 1 januari 2055 wordt € 741,79 welke jaarlijks wordt geïndexeerd tot 01-01-2055.
VERENIGING VAN EIGENAREN: De woning maakt deel uit van een actieve en gezonde VvE, professioneel beheerd door Newomij. De servicekosten bedragen € 349,- per maand.
BEREIKBAARHEID EN OMGEVING: Het appartement ligt in een rustige, groene wijk aan het water, op loopafstand van Strand Sloterplas en het Osdorpplein en biedt alle essentiële voorzieningen. Gunstige haltes van het openbaar vervoer liggen om de hoek en de belangrijkste snelwegen (A10 en A9) zijn binnen 10 minuten met de auto bereikbaar. Bij de woning hoort tevens een eigen berging en een eigen parkeerplaats in de overdekte garage van het complex.
Het complex 't Waterfort maakt deel uit van de ontwikkeling Meer en Oever, bekend om zijn rustige ligging en schilderachtige waterpartijen. Grenzend aan het Sloterpark en de Sloterplas kunnen bewoners heerlijk wandelen, fietsen, zwemmen en watersporten. Hoogtepunten in de buurt zijn onder meer:
Strand Sloterplas: Een bruisende nieuwe hotspot in Nieuw-West.
Sloterparkbad: Een van de grootste zwemfaciliteiten van Nederland, met binnen- en buitenzwembaden.
Sportpark Ookmeer: Biedt fitnessfaciliteiten (ClubWest), voetbalclubs, tennisbanen, een honkbalveld en zelfs een manege.
Op korte loopafstand ligt het bruisende Osdorpplein met een grote verscheidenheid aan winkels (Albert Heijn, Dirk van den Broek, HEMA), het internationale foodcentrum Westmarket en culturele bezienswaardigheden zoals Theater De Meervaart. Openbaar vervoersmogelijkheden zijn bus 61 naar station Sloterdijk, bus 369 naar luchthaven Schiphol, bus 63 naar Amsterdam Lelylaan en tram 17 naar Amsterdam Centraal.
BIJZONDERHEDEN:
- Ca. 145 M2 woonoppervlak (NEN-meetrapport aanwezig)
- Bouwjaar: 2006.
- Modern complex voorzien van lift.
- Groot en zonnig terras op het zuiden met uitzicht op de binnentuin.
- Twee eigen parkeerplaatsen in de afgesloten garage + aparte berging.
- Goed geïsoleerd, energielabel A.
- Nieuwe cv-ketel en mechanische ventilatie uit 2024.
- Moderne architectuur, omringd door water met doorvaart naar de Sloterplas.
- Actieve VvE, servicekosten € 349,- per maand.
- Rustige, groene en kindvriendelijke ligging.
- Notaris: naar keuze koper, mits koopakte conform Model Ring bij notaris in Groot Amsterdam.
- Oplevering: in overleg.
- Vraagprijs: € 725.000,- k.k.
***ENGLISH ***
SPACIOUS AND STYLISH FIVE-BEDROOM PENTHOUSE APARTMENT (145 M²) WITH A GENEROUS SOUTH-FACING TERRACE (17 M²) OVERLOOKING WATER AND GREENERY, ENERGY LABEL A, TWO BATHROOMS, TWO PARKING SPACES AND A STORAGE UNIT IN THE SECURE UNDERGROUND GARAGE, LOCATED IN THE MODERN COMPLEX "HET WATERFORT" (2006), IN A BEAUTIFUL SPOT NEXT TO THE SLOTERPARK AND THE SLOTERPLAS!
Space and comfort, while the vibrant city centre of Amsterdam is always within easy reach. The best of both worlds! A truly unique and highly sought-after combination. Will you be the lucky new owner of this gem? Then be sure to get in touch quickly with URBAN MAKELAARS!
LAYOUT (see the floor plans in the photo section)
Ground Floor: Secure entrance with video intercom system, staircase, and elevator to the 5th floor.
Fifth Floor:Thanks to its smart layout, the apartment offers generously sized rooms. The entrance hall provides access to the guest toilet, a bathroom with shower and washbasin, and a laundry/utility room with central heating, washing machine, and dryer connections. This space could easily be converted into a home office. The spacious living room features double sliding doors opening onto the south-facing terrace (7.25 x 2.40 m) with a view of the courtyard. The terrace is equipped with sun blinds and heating. At the front of the apartment is the large semi-open kitchen. The luxurious kitchen comes with ample storage, glossy cabinets, and a composite countertop, fitted with Siemens appliances: gas hob with wok burner, extractor hood, fridge/freezer combination, warming drawer, built-in coffee machine, Quooker, dishwasher, combi-microwave, and oven. The apartment offers three generous bedrooms in total, one of which has an en-suite bathroom with a walk-in shower, toilet, and double washbasin. The house has a recently renovated oak wooden floor throughout.
Parking and Storage: The property includes an individual storage unit and two private parking spaces in the secure underground garage.
Leasehold: The ground lease has been paid off until December 31, 2054. From January 1, 2055, the annual ground rent will be €741.79, indexed annually until that date.
Homeowners’ Association (VvE):The apartment is part of an active and financially healthy VvE, professionally managed by Newomij. Monthly service charges are €349.
Location & Accessibility:
The apartment is located in a peaceful, green area on the water, within walking distance of Sloterplas Beach and Osdorpplein, offering all essential amenities. Public transport stops are just around the corner, and major highways (A10 and A9) can be reached within 10 minutes by car.
The "Waterfort" complex is part of the Meer en Oever development, known for its tranquil setting and picturesque waterways. Directly adjacent to Sloterpark and Sloterplas, residents can enjoy walking, cycling, swimming, and watersports.
Highlights in the area include:
Strand Sloterplas: a lively new hotspot in Amsterdam Nieuw-West
Sloterparkbad: one of the largest swimming facilities in the Netherlands with indoor and outdoor pools
Sportpark Ookmeer: offering fitness (ClubWest), football clubs, tennis courts, baseball fields, and even a riding school
Within walking distance, you’ll also find the vibrant Osdorpplein shopping centre with supermarkets (Albert Heijn, Dirk van den Broek, HEMA), the international food market Westmarket, and cultural attractions such as Theater De Meervaart. Public transport options include bus 61 to Sloterdijk, bus 369 to Schiphol Airport, bus 63 to Amsterdam Lelylaan, and tram 17 to Amsterdam Central Station.
Key Features:
- Approx. 145 m² living space (NEN measurement report available)
- Year of construction: 2006
- Large, sunny south-facing terrace overlooking the courtyard
- Two private parking spaces in the underground garage + separate storage
-Well insulated, Energy Label A
- New central heating boiler and mechanical ventilation from 2024
- Modern architecture, surrounded by water with direct access to the Sloterplas
- Active VvE, service charges €349 per month
- Quiet, green, and child-friendly location
- Notary: buyer’s choice, provided the deed of sale follows the Model Ring with a notary in the Greater Amsterdam area
- Delivery: in consultation
- Asking price: € 725,000 k.k.
Urban Makelaars
Burgemeester Amersfoordtlaan 62
1171EE, BADHOEVEDORP
)
Het kopen van een woning in Amsterdam doe je met een aankoopmakelaar.
Vind een aankoopmakelaar
)
Altijd als eerste op de hoogte van nieuw aanbod. Maak een zoekprofiel aan!
Maak een zoekprofiel aan
)
Waarom je je laat adviseren door experts bij de aankoop van jouw woning.
Over financiering