



2132 NH, HOOFDDORP
Heerlijk alles voor jezelf!
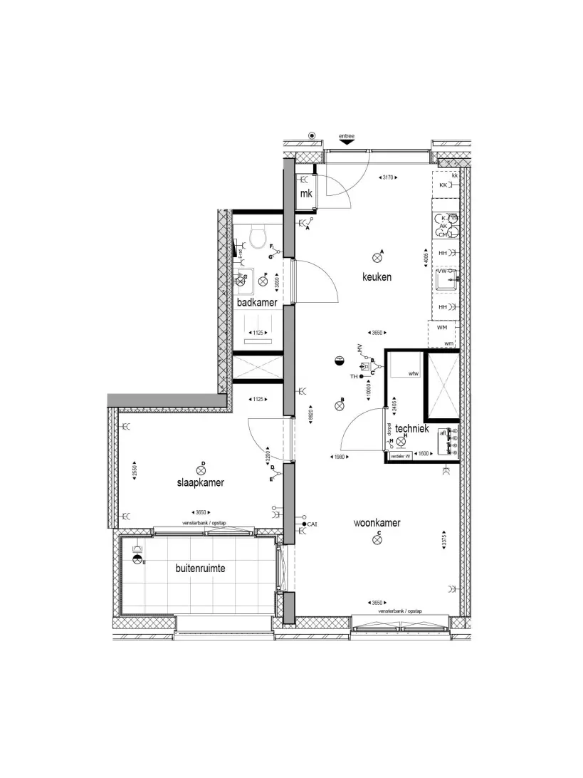
Dit ruime 2-kamerappartement op de tweede verdieping is voorzien van alle gemakken. Niet alleen beschikt dit leuke appartement over een riante woonkamer met open keuken, een fijne slaapkamer en gloednieuwe badkamer, ook heeft het een zonnige buitenruimte gelegen op het zuiden! Daarnaast is het appartement super duurzaam! Een warmtepomp, volledig geïsoleerd, vloerverwarming en energielabel A+, wat wil je nog meer?!
Goed om te weten
* Nieuwbouw
* Bouw is gestart - oplevering naar verwachting voorjaar 2028
* Woonoppervlakte ca. 48m2
* Buitenruimte ca. 5m2, gelegen op het zuiden
* Voorzien van badkamer met douche, wastafel en toilet
* Voorzien van keuken met o.a. inductiekookplaat, oven en afzuigkap
* Vloerverwarming en vloerkoeling middels warmtepomp
* Energielabel A+ (voorlopig label)
* Gezamenlijke fietsenberging
* Mogelijkheid tot huren van parkeerplaats in nabijgelegen garage
* Zelfbewoningsplicht
* Mogelijkheid tot aanvragen starterslening bij gemeente Haarlemmermeer
Wonen in Hyde Park in Hoofddorp; the place to be! Hier komt alles samen. Je hebt hier gezellige restaurants, cafés, winkels en sportfaciliteiten. Maar ook genoeg bomen en groene binnentuinen. Dit 2-kamerappartement bevindt zich in Victoria, een opvallend flamingo-roze gebouw met in de plint de Albert Heijn, diverse winkels en een horecavoorziening. Zie jij jezelf hier al op een terrasje zitten? Wat een sfeertje! Ook is er genoeg groen in en om Hyde Park. Ga lekker een blokje om in het naastgelegen park of spreek af in de gemeenschappelijke binnentuin.
Er zijn nog maar enkele appartementen beschikbaar, dus wacht niet te lang! Neem vooral een kijkje op de projectwebsite nieuwbouw-hydepark punt nl voor meer informatie en de inschrijving.
Mooijekind Vleut Makelaars Hoofddorp
Raadhuisplein 306 A
2132TZ, HOOFDDORP
)
Het kopen van een woning in Amsterdam doe je met een aankoopmakelaar.
Vind een aankoopmakelaar
)
Altijd als eerste op de hoogte van nieuw aanbod. Maak een zoekprofiel aan!
Maak een zoekprofiel aan
)
Waarom je je laat adviseren door experts bij de aankoop van jouw woning.
Over financiering