



1096 DS, AMSTERDAM
Woningtype KA02
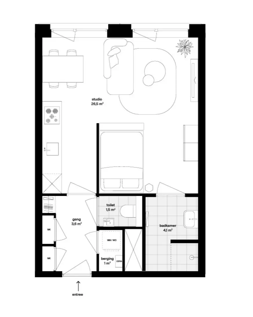
Dit appartement vind je op de 9e t/m 15e verdieping van Dialogue. En wat is het leven hier fijn. De studio is zo’n 38 m2 en biedt een heerlijke plek om te wonen, dicht bij de stad, verschillende uitvalswegen en het ov.
De plek voor de keuken, het toilet en de badkamer staan vast, de rest kun je helemaal naar eigen wens inrichten. De grote ramen zorgen overigens voor fijne lichtinval. Ook beschikt deze woning over een berging in de kelder van het gebouw. Handig om spullen in op te slaan.
Specificaties:
- Gelegen op eigen grond, dus geen erfpacht
- Studio appartement
- Gelegen op de 9e verdieping
- Compleet afgewerkt met keuken en badkamer
- Energielabel A+
- Vloerverwarming / -koeling
- Gemeenschappelijke binnentuin
- Berging in de kelder van het gebouw
- Bouw is gestart
- Oplevering medio 2027
DIALOGUE
Het spraakmakende project Dialogue ligt in Ouder-Amstel. Het gebouw verrijst aan de Wenckebachweg, binnen de ring, en telt in totaal 110 koopappartementen in allerlei varianten. Mede door de veelzijdige functies is verbinding een terugkerend thema in Dialogue. De twee iconische woontorens zijn trapsgewijs met elkaar verbonden, de openbare binnentuin in het hart van het gebouw nodigt uit om elkaar te ontmoeten en de commerciële plint zorgt voor een prettige dynamiek.
Hoogwaardige afwerking:
De koopappartementen in Dialogue worden opgeleverd met een moderne badkamer en keuken. De keuken is een hoogwaardige SieMatic keuken, inclusief inbouwapparatuur van Siemens en een kookplaat van Bora. Per type is een maatwerk keuken uitgewerkt. Bij de grotere appartementen heb je zelfs een Quooker. In de badkamer heb je standaard een wastafel en inloopdouche.
Stads buitenleven:
De gemeenschappelijke binnentuin vormt het groene hart van Dialogue. Hier komt alles samen. Je kunt de binnentuin zien als een verlengstuk van je eigen appartement. Deze semi-openbare binnentuin ligt op de eerste verdieping, boven de gemeenschappelijke fietsenstalling. Vanaf de straat bereik je de binnentuin via de grote trapopgang aan de noord- en zuidzijde. Daarnaast kun je de binnentuin binnendoor bereiken, met de lift.
In Dialogue hebben alle appartementen groter dan 50 m2 een eigen balkon of loggia. Balustrades zijn van glas met een aluminium boven - en onderregel in de kleur olijfgeel. De akoestische plafonds worden lichtgrijs, ton-sur-ton met de gevel.
Stijlvol binnenkomen:
Dialogue heeft meerdere entrees. Het zijn transparante ruimtes, waardoor ze direct opvallen. De entree ligt iets verdiept, waardoor je bezoek prettig droog staat. Je post haal je binnen in het voorportaal en in de centrale hal is er ruimte voor pakketserviceboxen.
Fietsenstalling, scooter, bakfiets of auto:
Onder Dialogue ligt een parkeerkelder. De inrit van de parkeergarage ligt aan de Noord-Oostzijde en bereik je vanuit de Wenckebachweg. Er zijn in totaal 52 auto parkeerplekken en 1 motorplek, waarvan 38 auto parkeerplekken zijn gereserveerd voor specifieke bouwnummers. Die reservering is een eerste recht tot koop. De kopers van die bouwnummers zijn dus niet verplicht om de parkeerplaats af te nemen.
Berging:
In de parkeerkelder liggen ook bergingen. Alle koopwoningen onder de 70 m2 hebben een berging in de kelder die zowel via het trappenhuis als met de lift vanuit de fietsenstalling, binnentuin en hoofdentree te bereiken is. Woningen die groter zijn dan 70 m2 hebben een inpandige berging in de woning.
De fietsenstalling op de begane grond is toegankelijk voor alle bewoners van Dialogue. Deze stalling fiets je zo in en is te bereiken via de fietseningang aan zowel de Noord- als Zuidzijde van het gebouw. Hier worden ook plekken voor scooters en bakfietsen gerealiseerd. De fietsenstalling wordt voorzien van twee kasten voor het opladen van accu’s van elektrische fietsen. Wel zo gemakkelijk!
Duurzame oplossingen:
Een van de belangrijke pluspunten van nieuwbouw is dat het duurzaam is. Zo zijn de appartementen in Dialogue bijzonder goed geïsoleerd en voorzien van een hoge kwaliteit balansventilatiesysteem. Een aantal platte daken bieden ruimte voor zonnepanelen, waarmee elektriciteit wordt opgewekt voor de WKO-installatie.
Om de woningen van warmte te voorzien, is gekozen voor de meest energie-efficiënte oplossing door Dialogue aan te sluiten op de collectieve WKO (Warmte- en Koude Opslag)-installatie van het Bajeskwartier. Deze installatie zorgt via vloerverwarming voor warmte in de winter en levert koeling bij hogere buitentemperaturen in de zomermaanden. Zo kun je de binnentemperatuur in de zomer, in de woonkamer en slaapkamer(s), met maximaal een paar graden verlagen.
Een plek voor iedereen:
Dialogue biedt zowel koop- als huurwoningen. De verkoop vindt gefaseerd plaats. De huurwoningen zullen ongeveer een half jaar voor de oplevering in verhuur gaan, dus begin 2027. En er is ruimte voor zorg, creatieve bedrijvigheid, een kleinschalige supermarkt en horeca. Het wordt een levendige plek die de diversiteit van Amsterdam weerspiegelt.
Wil je meer lezen over Dialogue, bekijk dat de website dialogue.amsterdam
"Deze informatie is door ons met de nodige zorgvuldigheid samengesteld. Onzerzijds wordt echter geen enkele aansprakelijkheid aanvaard voor enige onvolledigheid, onjuistheid of anderszins, dan wel de gevolgen daarvan. Alle opgegeven maten en oppervlakten zijn indicatief. Van toepassing zijn de NVM voorwaarden."
Wil je meer lezen over Dialogue, bekijk dat de website dialogue.amsterdam
Eefje Voogd Makelaardij B.V.
De Boelelaan 7
1083 HJ, AMSTERDAM
)
Het kopen van een woning in Amsterdam doe je met een aankoopmakelaar.
Vind een aankoopmakelaar
)
Altijd als eerste op de hoogte van nieuw aanbod. Maak een zoekprofiel aan!
Maak een zoekprofiel aan
)
Waarom je je laat adviseren door experts bij de aankoop van jouw woning.
Over financiering