



1214 JJ, HILVERSUM
Om de hoek van de levendige Gijsbrecht van Amstelstraat in Hilversum staat, te midden van een rijtje winkels en tegenover de AH, deze winkelruimte met bovengelegen appartement en beide een eigen opgang!
De winkel is een prettige en lichte ruimte met een afzonderlijke keuken voorzien van een eenvoudig keukenblokje, toegang tot het toilet, kelder onder de keuken en achterdeur naar de patio die per achterom bereikbaar is.
Naast het pand loopt een pad (achterom) dat toegang biedt tot de eerder genoemde patio die een stalen trapopgang heeft naar het bovengelegen terras, waar vandaan een deur toegang biedt tot het appartement.
Het appartement heeft een lichte woonkamer met half open keuken, slaapkamer en halletje met douche en toilet.
De Gijsbrecht van Amstelstraat ofwel “De Gijsbrecht” is al 100 jaar dé winkelstraat van Hilversum Zuid. Een levendig winkelgebied met een keur aan winkels, mooie speciaalzaken, kledingwinkels en horeca.
De bestemming voor de winkel is “gemengd” hetgeen betekent dat er detailhandel, dienstverlening en kantoren zich mogen vestigen. En horeca categorie A en B indien de gemeente Hilversum daar toestemming voor verleent.
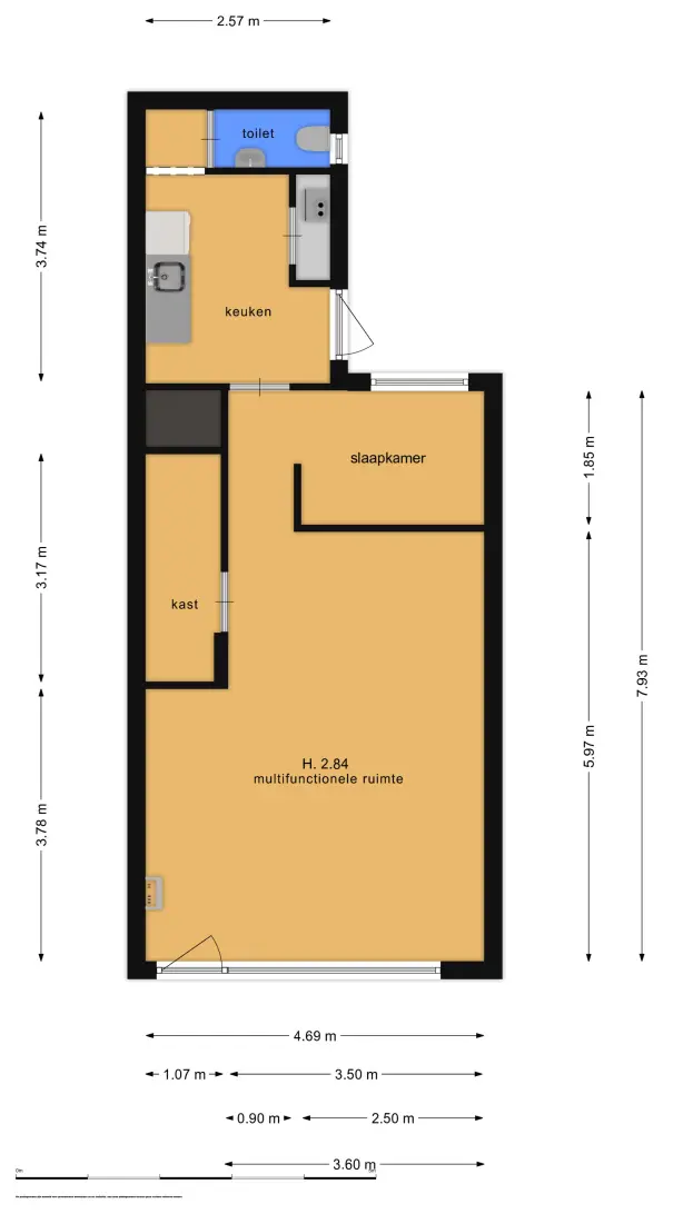
INDELING WINKEL
Entree met grote glazen winkelpui, winkelruimte naar wens in te delen, grote trapkast en toegang tot de keuken en het toilet, kast met cv-ketel en vloerluik naar een kleine kelder.
INDELING APPARTEMENT
Entree aan zijkant, trap naar eerste verdieping, deur naar terras. Vanaf terras een toegangsdeur naar het appartement. Hal met opstelling wasmachine, badkamer met douche, wastafel en wc. Woonkamer met open keuken aan voorzijde, slaapkamer achterzijde met zicht op terras. Het appartement word in verhuurde staat geleverd!
BIJZONDERHEDEN
• Grote glazen winkelpui aan de voorzijde van de winkel en voorzien van dubbel glas;
• Bovengelegen afzonderlijk appartement met slaapkamer, dakterras en eigen opgang;
• Mogelijkheid tot het bijbouwen van een tweede verdieping op het appartement;
• Voorzien van CV en grotendeels dubbelglas;
• Betaald parkeren in de omgeving;
• Oplevering op korte termijn mogelijk;
• Niet zelfbewoningsclausule is van toepassing;
• Van dit object geen vragenlijst B of lijst van zaken beschikbaar.
KENMERKEN
• Vloeroppervlakte winkel: ca. 47 m²
• Vloeroppervlakte woning: ca. 38 m2
• Afmeting terras: ca. 12 m²
• Perceeloppervlakte: 74 m²
• Bouwjaar: ca. 1905
Kappelle Makelaars Bussum I Naarden
Kapelstraat 5
1404HT, BUSSUM
)
Het kopen van een woning in Amsterdam doe je met een aankoopmakelaar.
Vind een aankoopmakelaar
)
Altijd als eerste op de hoogte van nieuw aanbod. Maak een zoekprofiel aan!
Maak een zoekprofiel aan
)
Waarom je je laat adviseren door experts bij de aankoop van jouw woning.
Over financiering